SEARCH 020 8660 2010 FREE INSTANT VALUATION
{$availability} Images for Hawkhirst Road, Kenley, CR8 EAID:4238971326 BID:111a20da-ac98-4726-afab-e685f1b287bd

Hawkhirst Road, Kenley, CR8
Offers In Excess Of £800,000

grid

Property Details

  • WATCH OUR VIDEO TOUR
  • IMMACULATELY PRESENTED FOUR DOUBLE BEDROOM DETACHED FAMILY RESIDENCE
  • TWO BATH/SHOWER ROOMS
  • THREE RECEPTION ROOMS + FULLY FITTED KITCHEN/BREAKFAST ROOM, UTILITY ROOM AND WC
  • LOCATED IN A PRIVATE ROAD ON THE BORDER WITH KENLEY COMMON, FOR ANYONE WITH DOGS OR CATS, THIS IS ANIMAL HEAVEN
  • DRIVEWAY WITH OFF STREET PARKING FOR TWO CARS TO THE FRONT, WITH A LARGE GENTLY SLOPING GARDEN TO THE REAR
  • KENLEY STATION IS A 10-12 MINUTE WALK WITH REGULAR TRAINS TO LONDON BRIDGE TAKING JUST 46 MINUTES
  • EPC RATING D - COUNCIL TAX BAND F

An immaculately presented, four double bedroom, two bath/shower room, three reception room, detached family residence, situated in a unique countryside setting just 12 minutes walk to Kenley station.

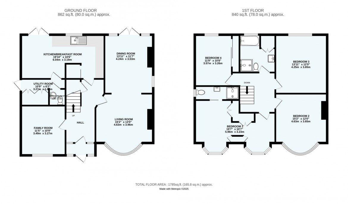
An immaculately presented, four double bedroom, two bath/shower room, three reception room, detached family residence, situated in a unique countryside setting within 12 minutes walk of Kenley station. Enclosed porch, spacious entrance hall, living room with fireplace and bay window overlooking front garden, open plan to double aspect dining room with French doors to rear terrace and garden, family/music room overlooking front garden, fully fitted kitchen/breakfast room with pantry and French doors to rear garden, separate utility room, WC. Stairs to first floor, principal bedroom with dressing room and en suite shower room, three further double bedrooms, family bathroom with bath and walk-in shower. Front garden resin driveway for two cars, steps leading to front door. Paved terrace with steps to large secluded rear garden.

MATERIAL INFORMATION

TREE PRESERVATION ORDERS – DONT KNOW

DISPUTES\COMPLAINTS WITH NEIGHBOURS – NO

KNOWN ISSUES THAT MIGHT AFFECT THE SALE OF THE PROPERTY – N0

ALTERATION/REPAIRS/EXTENSIONS – NO

REPLACEMENT WINDOWS OR DOORS SINCE 1ST APRIL 2002 – YES

CERTIFICATES AVAILABLE – YES

WORKING SMOKE/CARBON DIOXIDE ALARM – YES

KNOWN NOTICES/PLANNING APPLICATIONS/APPROVALS AFFECTING THE PROPERTY – NO

THE PROPERTY BENEFITS FROM: MAINS ELECTRICITY,GAS,WATER,DRAINAGE,

SATELLITE,TELEPHONE,BROADBAND – YES BROADBAND CHECKER LINK https://www.ofcom.org.uk/

KNOWN FLOOD RISK AREA – NO

KNOWN COVENANTS/RESTRICTIONS AFFECTING THE PROPERTY – NO

KNOWN BREACHES OF PLANNING PERMISSIONS OR BUILDING REGULATIONS – NO

KNOWN ISSUES WITH DRY ROT,DAMP,WOODWORM – NO

SPRAY FOAM INSULATON IN THE PROPERTY – NO

ASBESTOS IN THE PROPERTY – NO

CLAIMS FOR SUBSIDENCE OR KNOWN SUBSIDENCE – NO

KNOWN HEALTH AND SAFETY ISSUES – NO

CONSTRUCTION TYPE: BRICK/BLOCK UNDER A TILED ROOF

JAPANESE KNOTWEED – ARE YOU AWARE OF ANY JAPANESE KNOTWEED EITHER AT YOUR PROPERTY OR WITHIN THE IMMEDIATE AREA SURROUNDING YOUR PROPERTY? – NO

To speak to someone about this property please call us on Tel: 020 8660 2010 or email us at enquiries@shinerocks.co.uk

Enquire or book a viewing for this property

Please fill out the form or call us on 020 8660 2010

* Mandatory fields

Sell your Property

With three decades of experience in the local area, we can provide highly accurate valuations & selling tips. Talk to us when you’re ready to sell your home.

Get A Free Valuation

 

Floorplans For Hawkhirst Road, Kenley, CR8
EPC For Hawkhirst Road, Kenley, CR8
Images for Hawkhirst Road, Kenley, CR8 EAID:4238971326 BID:111a20da-ac98-4726-afab-e685f1b287bd

To speak to someone about this property please call us on
020 8660 2010
or email us at enquiries@shinerocks.co.uk

Book a Viewing

Mortgage Calculator

Lavender

Purley, Croydon & Surrey

Learn more about the areas we cover by reading these helpful location guides.

VIEW OUR AREAS

kingswood property

Recent Testimonials

Dear Paul and the ShineRocks team, Thank you! We are delighted that we successfully completed on the sale of The Garth, 12 Welcomes Road on Friday, and we wanted to take this opportunity to thank you, Claire and the team for all your excellent work on our behalf. We really appreciated your proactivity, frankness, responsiveness and good...

Mr & Mrs F

Very professional, responsive and delivered on promises to the tee

Mr G

Worked hard to find possible buyers. Very professional and friendly staff. Drove the completion by liaising with all parties when things threatened to go pear-shaped. Very satisfied customer

Mrs H-W

Having tried a couple estate agents to sell our house, with no result, we tried ShineRocks. Paul Shinerock was realistic in his valuation, which others had not been and we had a number of viewings. A Christmas present was accepting a very good offer. Unfortunately, the buyer dragged his heels and then at the point of exchange decided to...

Mr P

A great service offered by both Paul and Claire. Sometimes the best thing an agent can do is to convince you to accept an offer and to encourage you to pay more to get the house of your dreams. Had Paul not convinced me to accept the offer on mine I would not have moved. Claire moved heaven and earth to enable me to purchase a property through...

Mr & Mrs W

Very helpful, pleasure to work with, and they offer a great service

Mr L

My house purchase was very complicated, ShineRocks handled it very professionally

Mr H

Claire was our estate agent and she was incredibly professional, always available and kept us completely up to date. A pleasure to buy and sell with

Mrs P

Exceptionally professional and helpful and very knowledgeable. Would highly recommend ShineRocks

Mr P

Excellent service over a period of several months. Always at hand to offer advice and their expertise. Highly Recommend Shinerocks and thank you for all your help

Mr A

I was very pleased with the service - professional yet caring

Mrs L

Very professional and excellent service in a complicated situation which resulted in a positive result. We have purchased 2 homes from Paul in the last 14 years. Claire is remarkable and kept us fully up to speed

Mr P

Very friendly. After a slow start we got on very well and achieved our objective. Particular thanks to Claire

Dr L

Hi Caire, Can you say a massive 'thank you' to Paul for coming to see me. He really gave me some things to think about that had just not crossed my mind. Swapping the bathroom and middle bedroom and adding a bathroom to the main bed room made so much sense, I've got Alan coming over on Saturday to cost it up! I'll definitely...

D

We have recently purchased a property through shinerocks and can honestly say the service we received from Claire was exceptional. She kept us updated regularly and liaised tirelessly between solicitors, vendors and the other agents in what became a difficult and frustrating chain. She was both professional and personable, and we always felt...

M & C

Claire, You're an absolute star! Thank you so much.

Mr and Mrs W

I would just like to take this opportunity to thank you for your assistance and facilitation of the purchase of our property, and I would relish the opportunity to work with you again in future endeavours.

CT

Just want to say a big thank you for all your help and support.  I know you were not our estate agent but we really felt supported and coached through the whole process and I can't thank you enough. 

M, J &A

Paul, Claire and all the team at ShineRocks have always acted with the utmost professionalism and in my experience have been the best estate agency I have ever encountered.  

Mr D

Dear Claire, Thank you so much for making our dream home come true.  Invitation to the house warming is guaranteed! Much Love

R & N

Hi the ShineRocks Team Would like to say thank you for a great service in completing on our house.  We are totally blessed, we feel so lucky.  Your team with friendly voices were very proactive in updating us.  Paul you have a good team around and to say the least, you have some charm. You are a very nice bunch of people to...

L M

We would like to also comment upon the superb level of professionalism shown by the staff at ShineRocks. Having been to other block bookings we must say that this one was handled to so well. Additionally the advice given regarding parking was most helpful. We will certainly keep an eye out for other properties marketed by you. Kindest...

Mr and Mrs H

Dear Paul How very happy I am to be the lucky chap that has been given the privilege to buy and live in the elegant property. Thank you again for the excellent service provided by ShineRocks. Yours sincerely 

Mr R

Thanks for all your attention - I am impressed with your service and will recommend you to friends. Kind regards 

Mrs A

Dear Paul This is amazing! Thank you and your team very much. Whatever happens now, I know that you all did a fantastic job in achieving this - its unbelievable. Many thanks Kindest regards 

Mrs D

Terrific news. Thank you Paul. With all thanks for your support and help during this process. All best wishes 

Mr H

Thank you so much for all your help with our house move. We appreciate the hard work you put in to finally get us to an exchange date. Your calm approach and sense of humour throughout really helped. Thanks again, 

Mr and Mrs G

Thank you so much for all your work on selling our home. It is much appreciated. Best wishes 

Mr and Mrs R

Thanks again for everything that you have done to get our new home. God bless you. 

Mr and Mrs P

Dear Claire and the 'team' at ShineRocks for all of your help and patience with our purchase.  Best wishes

K and L

Dear Mr Shinerock, thank you so very much for valued advice last Saturday; your remarks and suggestions have certainly got us thinking of the best way to turn! Best wishes

V and K

Dear Paul We are at last beginning to see some order in our new home and have time to catch breath. The move was challenging to say the least as we were downsizing dramatically and had too much to fit in prior to having an extension to create two more rooms and allow us to convert an existing one into a utility room. We would like to take...

G and S S

Good morning Claire, I have been meaning to e mail you since Monday just to say thank you! Mum and I are extremely grateful for all the time you have given us and we really do value your advice and guidance.  We have been in contact with a lot of agents, in fact probably all of the main estate agents around the area and ShineRocks...

S and M

Dear Paul, Well, we got there in the end! Although it was long, complicated and at times, a very stressful journey, we appreciate the help of you and all your team in finally getting us over the finishing line. Best regards

B

Thank you for everything you've done. I couldn't have got through this without you. Putting up with every difficult situation in such a kind way. Thank you so much. 

Mrs P

Paul, Claire and all the team at ShineRocks have always acted with the utmost professionalism and in my experience have been the best estate agency I have ever encountered.

Mr H