SEARCH 020 8660 2010 FREE INSTANT VALUATION
{$availability} Images for Welcomes Road, Kenley, Surrey EAID:SHINEROCKSPAPI BID:1

Welcomes Road, Kenley, Surrey
£451,500

grid

Property Details

  • 40% LONDON HELP TO BUY AVAILABLE, RESERVE OFF PLAN NOW
  • NEWLY CONVERTED TWO BEDROOM PENTHOUSE APARTMENT WITH 6 YEAR PROFESSIONAL CONSULTANTS' CERTIFICATE
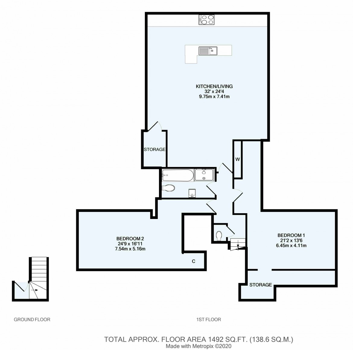
  • FULLY FITTED 32' X 24'4 DOUBLE ASPECT KITCHEN/DINING/LIVING ROOM
  • STUNNING CONVERSION OF 1906 EDWARDIAN BUILDING WITH LIFT ACCESS TO GROUND AND FIRST FLOORS
  • PREMIER PRIVATE ROAD
  • FIVE MINUTES WALK TO KENLEY RAILWAY STATION

36 Welcomes Road is a development of just 8, one, two and three bedroom apartments. 40% LONDON HELP TO BUY AVAILABLE, 6 YEAR PROFESSIONAL CONSULTANTS' CERTIFICATE, PRICES FROM: £299,950 - 50% RESERVED - RESERVE OFF PLAN or telephone for more INFORMATION (photos shown are a selection from different apartments in the development). Located in Kenley's most sought after premier private road, just 5 minutes walk to Kenley station. This beautiful and imposing, 1906 Edwardian building, stands proudly in delightful secluded grounds of approaching 2/3 of an Acre. The property has been imaginatively converted by "Property Experts", using quality materials, with luxury fitted kitchens, bathrooms and Lift to ground and first floors. All apartments have private parking with apartments 1-4, 6 & 8 having there own private garden. Apartment 8, "The Penthouse" takes up the whole of the second floor: Communal entrance, stairs and Lift to first floor, entrance hall, private staircase to Penthouse, hallway, 32' x 24'4 double aspect open plan kitchen/dining/living room, two double bedrooms, what can only be described as a sexy bathroom with bath and separate shower. Private garden, Private parking space for one vehicle, recycling facilities, cycle store. 125 YEAR LEASE. ESTIMATED SERVICE CHARGE £1,637.36 P/A. GROUND RENT £450.00 P/A. EPC: TBA. PRICES FOR APARTMENTS: (1) £475,000 SOLD STC (2) £400,000 SOLD STC (3) £385,000 (4) £465,000 SOLD STC (5) £315,000 (6) £405,000 SOLD STC (7) £299,950 (8) PENTHOUSE £450,000.

AMENITIES

36 Welcomes Road is situated towards the bottom end of Welcomes Road. A few minutes walk down to Kenley Station serving London Bridge and Victoria from 37 minutes, as well as local shops and two bus routes. The building is within easy walking distance of Kenley Common. The area is well served by many excellent state and independent schools; notable independent schools include Cumnor House, Whitgift, Old Palace, Croydon High, Trinity, and Caterham co-educational day and boarding school. A short drive away you will find Caterham Town Centre with Waitrose, Morrisons and many shops, bars and restaurants. Purley Town Centre offering its main line train station and Tesco's supermarket is also nearby. There are numerous golf courses in the area including Surrey National and Purley Downs. Extensive shopping facilities can be found in Croydon Town Centre with superstore shopping on the Purley Way. The M25 and M23 are easily accessible within about a twenty minute drive, Gatwick Airport being approximately 30 minutes away by car or train.

OUTSIDE

PRIVATE PARKING & GARDEN: Approached via a brick pillared entrance, sweeping tarmac driveway through a canopy of mature conifers, leading to a large tarmac parking area. Allocated parking space. Communal lawn areas to both sides of driveway, with a variety of trees and mature shrubs, steps to front door. Pathway to private garden area.

FEATURES

LED LIGHTING - DOUBLE GLAZING - SMOKE ALARMS - EXTERNAL SECURITY LIGHTING - VIDEO ENTRY SYSTEM. GAS COMBI BOILERS - DEDICATED TV, SKY AND BT POINTS - GREY OAK INTERNAL FIRE DOORS - USB CHARGING PLUG SOCKETS TO LIVING ROOMS AND BEDROOMS - DEEP PILE WOOL CARPETS - FULLY FITTED KITCHENS WITH QUARTZ WORKTOPS - COLOURED GLASS SPLASHBACKS - ZANUSSI APPLIANCES INCLUDING: DISHWASHERS & INSINKERATOR BOILING HOT WATER TAPS. BATHROOMS WITH GEBRIT TOILET CISTERNS AND ROCA/RAK WALL MOUNTED WC'S WITH SOFT CLOSE SEATS - CROSSWATER TAPS AND SHOWER VALVES - WALL MOUNTED VANITY UNITS WITH SOFT CLOSE DRAWERS - ITALIAN LARGE FORMAT BATHROOM TILES.

EPC

To be advised.

For clarification purposes, we wish to inform prospective purchasers that these details have been prepared as a general guide only. We have not carried out a detailed survey, nor tested the services, appliances and specific fittings. Room sizes are approximate and generally to maximum dimensions and should not be relied upon for carpets or furnishings. Whilst every attempt has been made to ensure the accuracy of the floor plan contained herein, measurements of doors, windows and room sizes are approximate and no responsibility is taken for any error, omission or mis-statement. This plan is for illustration purposes only and should only be used as such.

To speak to someone about this property please call us on Tel: 020 8660 2010 or email us at enquiries@shinerocks.co.uk

Enquire or book a viewing for this property

Please fill out the form or call us on 020 8660 2010

* Mandatory fields

Sell your Property

With three decades of experience in the local area, we can provide highly accurate valuations & selling tips. Talk to us when you’re ready to sell your home.

Get A Free Valuation

 

Floorplans For Welcomes Road, Kenley, Surrey
EPC For Welcomes Road, Kenley, Surrey
Images for Welcomes Road, Kenley, Surrey EAID:SHINEROCKSPAPI BID:1

To speak to someone about this property please call us on
020 8660 2010
or email us at enquiries@shinerocks.co.uk

Book a Viewing

Mortgage Calculator

Lavender

Purley, Croydon & Surrey

Learn more about the areas we cover by reading these helpful location guides.

VIEW OUR AREAS

kingswood property

Recent Testimonials

Dear Paul and the ShineRocks team, Thank you! We are delighted that we successfully completed on the sale of The Garth, 12 Welcomes Road on Friday, and we wanted to take this opportunity to thank you, Claire and the team for all your excellent work on our behalf. We really appreciated your proactivity, frankness, responsiveness and good...

Mr & Mrs F

Very professional, responsive and delivered on promises to the tee

Mr G

Worked hard to find possible buyers. Very professional and friendly staff. Drove the completion by liaising with all parties when things threatened to go pear-shaped. Very satisfied customer

Mrs H-W

Having tried a couple estate agents to sell our house, with no result, we tried ShineRocks. Paul Shinerock was realistic in his valuation, which others had not been and we had a number of viewings. A Christmas present was accepting a very good offer. Unfortunately, the buyer dragged his heels and then at the point of exchange decided to...

Mr P

A great service offered by both Paul and Claire. Sometimes the best thing an agent can do is to convince you to accept an offer and to encourage you to pay more to get the house of your dreams. Had Paul not convinced me to accept the offer on mine I would not have moved. Claire moved heaven and earth to enable me to purchase a property through...

Mr & Mrs W

Very helpful, pleasure to work with, and they offer a great service

Mr L

My house purchase was very complicated, ShineRocks handled it very professionally

Mr H

Claire was our estate agent and she was incredibly professional, always available and kept us completely up to date. A pleasure to buy and sell with

Mrs P

Exceptionally professional and helpful and very knowledgeable. Would highly recommend ShineRocks

Mr P

Excellent service over a period of several months. Always at hand to offer advice and their expertise. Highly Recommend Shinerocks and thank you for all your help

Mr A

I was very pleased with the service - professional yet caring

Mrs L

Very professional and excellent service in a complicated situation which resulted in a positive result. We have purchased 2 homes from Paul in the last 14 years. Claire is remarkable and kept us fully up to speed

Mr P

Very friendly. After a slow start we got on very well and achieved our objective. Particular thanks to Claire

Dr L

Hi Caire, Can you say a massive 'thank you' to Paul for coming to see me. He really gave me some things to think about that had just not crossed my mind. Swapping the bathroom and middle bedroom and adding a bathroom to the main bed room made so much sense, I've got Alan coming over on Saturday to cost it up! I'll definitely...

D

We have recently purchased a property through shinerocks and can honestly say the service we received from Claire was exceptional. She kept us updated regularly and liaised tirelessly between solicitors, vendors and the other agents in what became a difficult and frustrating chain. She was both professional and personable, and we always felt...

M & C

Claire, You're an absolute star! Thank you so much.

Mr and Mrs W

I would just like to take this opportunity to thank you for your assistance and facilitation of the purchase of our property, and I would relish the opportunity to work with you again in future endeavours.

CT

Just want to say a big thank you for all your help and support.  I know you were not our estate agent but we really felt supported and coached through the whole process and I can't thank you enough. 

M, J &A

Paul, Claire and all the team at ShineRocks have always acted with the utmost professionalism and in my experience have been the best estate agency I have ever encountered.  

Mr D

Dear Claire, Thank you so much for making our dream home come true.  Invitation to the house warming is guaranteed! Much Love

R & N

Hi the ShineRocks Team Would like to say thank you for a great service in completing on our house.  We are totally blessed, we feel so lucky.  Your team with friendly voices were very proactive in updating us.  Paul you have a good team around and to say the least, you have some charm. You are a very nice bunch of people to...

L M

We would like to also comment upon the superb level of professionalism shown by the staff at ShineRocks. Having been to other block bookings we must say that this one was handled to so well. Additionally the advice given regarding parking was most helpful. We will certainly keep an eye out for other properties marketed by you. Kindest...

Mr and Mrs H

Dear Paul How very happy I am to be the lucky chap that has been given the privilege to buy and live in the elegant property. Thank you again for the excellent service provided by ShineRocks. Yours sincerely 

Mr R

Thanks for all your attention - I am impressed with your service and will recommend you to friends. Kind regards 

Mrs A

Dear Paul This is amazing! Thank you and your team very much. Whatever happens now, I know that you all did a fantastic job in achieving this - its unbelievable. Many thanks Kindest regards 

Mrs D

Terrific news. Thank you Paul. With all thanks for your support and help during this process. All best wishes 

Mr H

Thank you so much for all your help with our house move. We appreciate the hard work you put in to finally get us to an exchange date. Your calm approach and sense of humour throughout really helped. Thanks again, 

Mr and Mrs G

Thank you so much for all your work on selling our home. It is much appreciated. Best wishes 

Mr and Mrs R

Thanks again for everything that you have done to get our new home. God bless you. 

Mr and Mrs P

Dear Claire and the 'team' at ShineRocks for all of your help and patience with our purchase.  Best wishes

K and L

Dear Mr Shinerock, thank you so very much for valued advice last Saturday; your remarks and suggestions have certainly got us thinking of the best way to turn! Best wishes

V and K

Dear Paul We are at last beginning to see some order in our new home and have time to catch breath. The move was challenging to say the least as we were downsizing dramatically and had too much to fit in prior to having an extension to create two more rooms and allow us to convert an existing one into a utility room. We would like to take...

G and S S

Good morning Claire, I have been meaning to e mail you since Monday just to say thank you! Mum and I are extremely grateful for all the time you have given us and we really do value your advice and guidance.  We have been in contact with a lot of agents, in fact probably all of the main estate agents around the area and ShineRocks...

S and M

Dear Paul, Well, we got there in the end! Although it was long, complicated and at times, a very stressful journey, we appreciate the help of you and all your team in finally getting us over the finishing line. Best regards

B

Thank you for everything you've done. I couldn't have got through this without you. Putting up with every difficult situation in such a kind way. Thank you so much. 

Mrs P

Paul, Claire and all the team at ShineRocks have always acted with the utmost professionalism and in my experience have been the best estate agency I have ever encountered.

Mr H